価格8,749万円
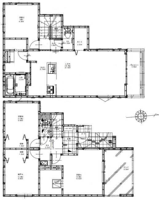
3SLDK
所在:府中市幸町1丁目
new
交通:京王線府中徒歩13分 武蔵野線北府中徒歩15分
土 地
99.99㎡(30.25坪)
建 物
110.23㎡(33.34坪)
建ぺい率
70%
容積率
100%
構 造
木造2階建て
築 年
2026年06月
間取り
3SLDK
駐車場
有り
用 途
第1種住居地域
接 道
角地
北6M道路
西5.6M道路
現 況
未完成
引 渡
相談






設 備
公営水道、公共下水、東京電力、都市ガス
仕 様
備 考
周辺状況



