価格4,690万円
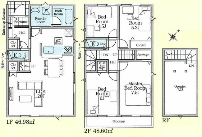
4LDK
所在:府中市日新町4丁目
新価格
交通:南武線西府徒歩17分
分譲全7区画。
土 地
131.37㎡(39.74坪)
建 物
95.58㎡(28.91坪)
建ぺい率
50%
容積率
100%
構 造
木造2階建て
築 年
2026年02月
間取り
4LDK
駐車場
有り
用 途
第1種低層住居地域
接 道
一方
北7M道路
現 況
未完成
引 渡
相談






設 備
公営水道、公共下水、東京電力、都市ガス
仕 様
備 考
周辺状況



