価格6,690万円
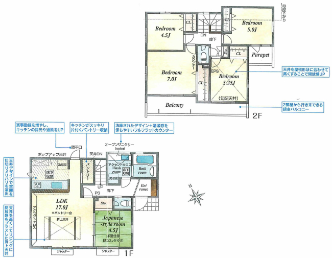
5LDK
所在:府中市分梅町5丁目
new
交通:京王線中河原徒歩9分 京王線・南武線分倍河原徒歩16分
土 地
134.02㎡(40.54坪)
建 物
103.50㎡(31.31坪)
建ぺい率
40%
容積率
80%
構 造
木造2階建て
築 年
2026年04月
間取り
5LDK
駐車場
有り
用 途
第1種低層住居地域
接 道
一方
南4M道路
現 況
未完成
引 渡
相談






設 備
公営水道、公共下水、東京電力、都市ガス
仕 様
備 考
周辺状況



