価格6,790万円
3SLDK
所在:府中市若松町3丁目
new
交通:京王線東府中徒歩15分 西武多摩川線白糸台徒歩18分
分譲全3区画。
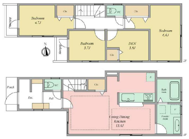
土 地
108.31㎡(32.76坪)
建 物
83.42㎡(25.23坪)
建ぺい率
40%
容積率
80%
構 造
木造2階建て
築 年
2026年03月
間取り
3SLDK
駐車場
有り
用 途
第1種低層住居地域
接 道
一方
西6M道路
現 況
未完成
引 渡
相談






設 備
公営水道、公共下水、東京電力、都市ガス
仕 様
備 考
周辺状況



