価格8,340万円
4LDK
所在:府中市若松町4丁目
new
交通:京王線東府中徒歩15分
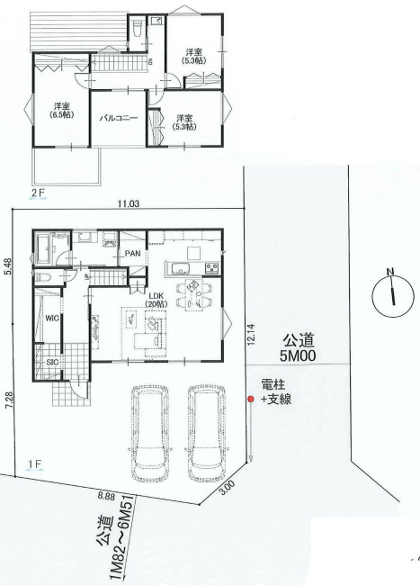
土 地
147.97㎡(44.76坪)
建 物
116.64㎡(35.28坪)
建ぺい率
40%
容積率
80%
構 造
木造2階建て
築 年
間取り
4LDK
駐車場
有り
用 途
第1種低層住居地域
接 道
角地
南6.5M道路
東5M道路
現 況
未完成
引 渡
相談






設 備
公営水道、公共下水、東京電力、都市ガス
仕 様
備 考
周辺状況



