価格5,390万円
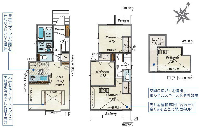
3SLDK
所在:府中市是政1丁目
new
交通:京王線多磨霊園徒歩10分 京王線東府中徒歩12分
新築分譲全2棟。
土 地
97.28㎡(29.43坪)
建 物
77.76㎡(23.52坪)
建ぺい率
40%
容積率
80%
構 造
木造2階建て
築 年
2026年04月
間取り
3SLDK
駐車場
有り
用 途
第1種低層住居地域
接 道
一方
北5.2M道路
現 況
未完成
引 渡
相談






設 備
公営水道、公共下水、東京電力、都市ガス
仕 様
備 考
周辺状況



