価格6,290万円
3SLDK
所在:府中市朝日町1丁目
new
交通:京王線武蔵野台徒歩15分 西武多摩川線多磨徒歩12分
新築分譲全3棟。
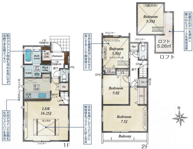
土 地
104.41㎡(31.58坪)
建 物
83.28㎡(25.19坪)
建ぺい率
40%
容積率
80%
構 造
木造2階建て
築 年
2026年03月
間取り
3SLDK
駐車場
有り
用 途
第1種低層住居地域
接 道
一方
北5.4M道路
現 況
未完成
引 渡
相談






設 備
公営水道、公共下水、東京電力、都市ガス
仕 様
備 考
周辺状況



