価格5,880万円
3LDK
所在:府中市南町3丁目
new
交通:京王線中河原徒歩11分
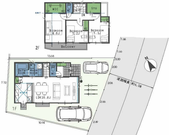
カースペース並列2台。 新築分譲全2棟。
土 地
104.58㎡(31.64坪)
建 物
83.62㎡(25.30坪)
建ぺい率
40%
容積率
80%
構 造
木造2階建て
築 年
2025年05月
間取り
3LDK
駐車場
有り
用 途
第1種低層住居地域
接 道
一方
東6M道路
現 況
未完成
引 渡
相談






設 備
公営水道、公共下水、東京電力、都市ガス
仕 様
備 考
周辺状況



