価格5,990万円
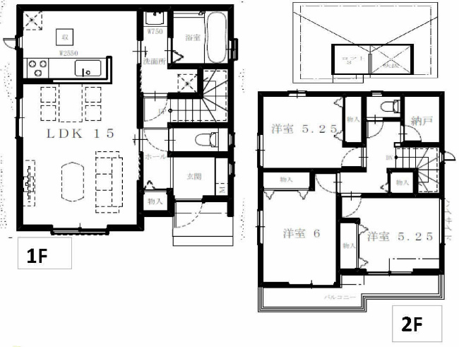
3SLDK
所在:府中市紅葉丘3丁目
new
交通:西武多摩川線多磨徒歩6分
カースペース並列2台。長期優良住宅
土 地
105.80㎡(32.00坪)
建 物
83.21㎡(25.17坪)
建ぺい率
40%
容積率
80%
構 造
木造2階建て
築 年
2026年02月
間取り
3SLDK
駐車場
有り
用 途
第1種低層住居地域
接 道
一方
南4M道路
現 況
未完成
引 渡
相談






設 備
公営水道、公共下水、東京電力、都市ガス
仕 様
備 考
周辺状況



