価格5,590万円
3SLDK
所在:府中市白糸台4丁目
新価格
交通:京王線武蔵野台徒歩4分 西武多摩川線白糸台徒歩5分
土 地
102.92㎡(31.13坪)
建 物
78.56㎡(23.76坪)
建ぺい率
40%
容積率
80%
構 造
木造2階建て
築 年
2025年06月
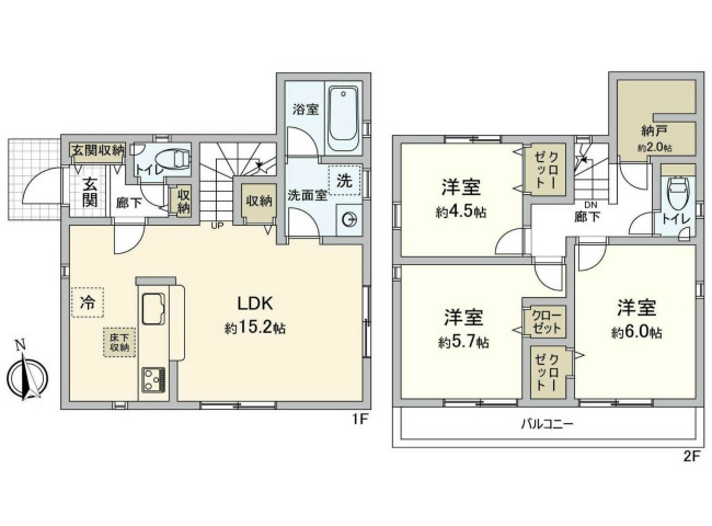
間取り
3SLDK
駐車場
有り
用 途
第1種低層住居地域
接 道
一方
西4M道路
現 況
空家
引 渡
相談






設 備
公営水道、公共下水、東京電力、都市ガス
仕 様
備 考
周辺状況
第四or小柳or南白糸台小学校:要確認学区 第六or第九中学校:要確認学区



